Duża, ogrodzona działka (2,172 m2) - zadbany trawnik, liczne nasadzenia; dojazd drogą z kostki brukowej.
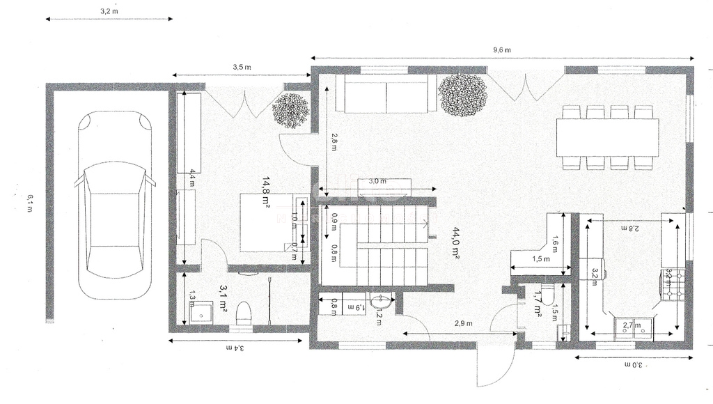
Na parterze :
- duży salon z jadalnią , od strony południowej,
- kuchnia,
- łazienka,
- kotłownia,
- pokój z własna łazienką.
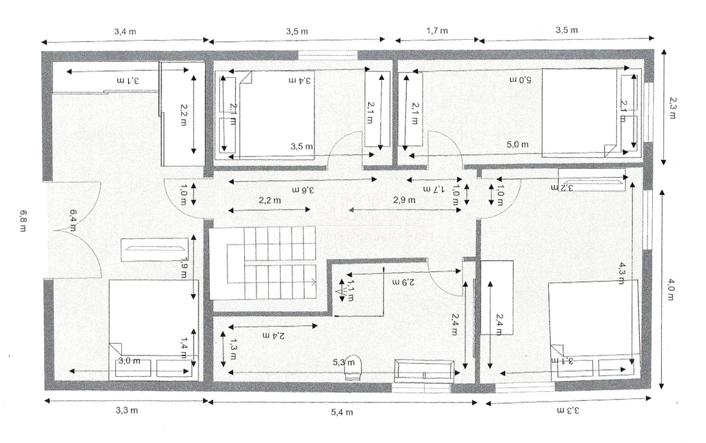
Na piętrze :
- 4 pokoje, w tym jeden z garderobą.
- łazienka.
Dodatkowo poddasze.
W salonie przewidziane miejsce pod kominek.
Z górnych pokoi widok na Zalew.
Dom budowany w technologii tradycyjnej - ściany z POROTHERM , strop żelbetowy lany , okna PCV, dachówka ceramiczna.
Obecnie dom w stanie surowym zamkniętym. W budynku rozciągnięta sieć elektryczna.
Do wykonania pozostało :
- instalacja wod - kan,
- ogrzewanie,
- tynki,
- ocieplenie ścian i poddasza.
Na tym etapie można jeszcze zmienić ustawienie ścianek i rozmieszczenie pomieszczeń.
Garaż w formie wiaty przylegającej do budynku.
Ogrzewanie i ciepła woda z pieca gazowego dwu-obiegowego.
Na działce skrzynka ZK, podłączenie wody i kanalizacji, oraz gaz.
Gmina jest jeszcze w trakcie uchwalania Planu Ogólnego, dzięki czemu można wystąpić o WZ lub zapis w planie o dodatkową zabudowę (np. domem mieszkalnym lub letniskowymi).
Właściciel wystąpił o zgodę na dwa małe budynki pod wynajem.
Każdy zainteresowany zakupem nieruchomości z bazy naszego biura nieruchomości ma gwarantowaną obsługę w zakresie uzyskania kredytu (bez prowizji od kupującego i dodatkowych kosztów związanych z załatwieniem kredytu). Współpracując z największym brokerem kredytowym na rynku polskim możemy sprawdzić dla Państwa zdolność kredytową w ponad 20 bankach. O szczegóły proszę pytać agenta odpowiedzialnego za to ogłoszenie.
Kupujemy nieruchomości za gotówkę, również zadłużone: mieszkania, domy, działki - płacimy natychmiast!
Powyższe ogłoszenie ma wyłącznie charakter informacyjny. Nie stanowi ono oferty w myśl art. 66 i n. ustawy z dnia 23.04.1964r. Kodeks cywilny (Dz.U. 1964r. Nr 16, poz. 93, ze zm.).
Chcesz otrzymywać podobne oferty?
Skorzystaj z automatycznych powiadomień e-mail o nowych ogłoszeniach w wybranych kryteriach wyszukiwania






















